Home > Renovaties / Restauraties / Klassiekere projecten > Van Loon - Lambrechts, Essen

Van Loon - Lambrechts, Essen, mei 2021

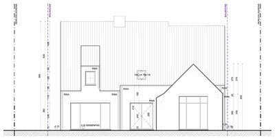
Afbraak bestaande woning + bouw nieuwe woning

Renovaties / Restauraties / Klassiekere projecten

Renovaties / Restauraties / Klassiekere projecten

Renovaties / Restauraties / Klassiekere projecten

Renovaties / Restauraties / Klassiekere projecten

Renovaties / Restauraties / Klassiekere projecten

Renovaties / Restauraties / Klassiekere projecten

Renovaties / Restauraties / Klassiekere projecten

Renovaties / Restauraties / Klassiekere projecten

Renovaties / Restauraties / Klassiekere projecten

Renovaties / Restauraties / Klassiekere projecten

Renovaties / Restauraties / Klassiekere projecten

Renovaties / Restauraties / Klassiekere projecten

Renovaties / Restauraties / Klassiekere projecten

Renovaties / Restauraties / Klassiekere projecten

Renovaties / Restauraties / Klassiekere projecten

Renovaties / Restauraties / Klassiekere projecten

Renovaties / Restauraties / Klassiekere projecten


↑ naar boven ↑
Deze website gebruikt geen cookies. koenmichielsen.be - webdesign Essen