Architectenbureau Bart VAN LOON bvba
Architectuur - Veiligheidscoördinatie ( - EPB Verslaggeving)
Home
Nieuw
Architectuur
Eéngezinswoningen
Appartementen / Meergezinswoningen / Woningen met handelsruimten
Projecten allerlei
Verbouwingen
Renovaties / Restauraties / Klassiekere projecten
Interieur
Omgevingswerken / Buitenaanleg
Bijgebouwen; tuinhuis, tuinberging, overdekt terras, carport, poolhouse, ...
Landbouw
Industrie / KMO
Woningen in PRUP / weekendhuizen
Veiligheid
Bureau
Curriculum vitae
Milieucoördinatie
Wedstrijden
Publicaties
Jobaanbieding
Contact
Home
>
Omgevingswerken / Buitenaanleg
>
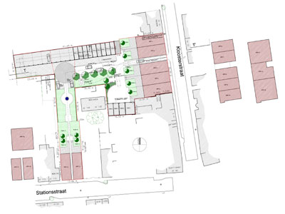
Temac Nv + Kempisch bouwbedrijf, Essen
Temac Nv + Kempisch bouwbedrijf, Essen, januari 2005
Masterplan / tuinplan
↑
naar boven
↑
Deze website gebruikt geen cookies.
koenmichielsen.be - webdesign Essen