Home > Projecten allerlei > Gemeentebestuur Kalmthout, Kalmthout - Nieuwmoer

Gemeentebestuur Kalmthout, Kalmthout - Nieuwmoer, oktober 2013


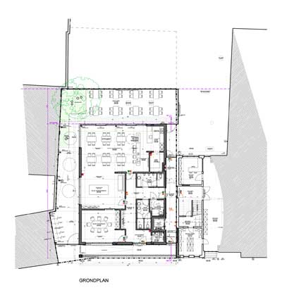
Bouw gemeenschapshuis Nieuwmoer


Projecten allerlei

Projecten allerlei

Projecten allerlei

Projecten allerlei

Projecten allerlei

Projecten allerlei

Projecten allerlei

Projecten allerlei

Projecten allerlei

Projecten allerlei

Projecten allerlei

Projecten allerlei

Projecten allerlei

Projecten allerlei

Projecten allerlei

Projecten allerlei

Projecten allerlei

Projecten allerlei

Projecten allerlei

Projecten allerlei

Projecten allerlei

Projecten allerlei

Projecten allerlei

Projecten allerlei

Projecten allerlei

Projecten allerlei

Projecten allerlei

Projecten allerlei

Projecten allerlei

Projecten allerlei

Projecten allerlei

Projecten allerlei

Projecten allerlei

Projecten allerlei

Projecten allerlei


↑ naar boven ↑
Deze website gebruikt geen cookies. koenmichielsen.be - webdesign Essen